Royal Oak Adaptive Reuse Restaurant

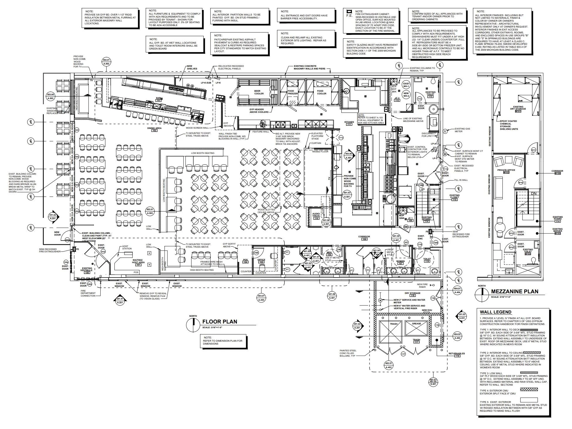
Morrie - 7,400 sqft Downtown Royal Oak Michigan liquor store / deli renovated into a restaurant and bar. My contribution was Architectural Project Manager for Biddison Architecture was maintained a direct line of communication with clients and general contractor, hosted meetings to present design ideas to clients, used AutoCAD to create, develop, and detail construction documents, oversaw construction, checked shop drawings, and checked submittal packages, proposed material and plumbing fixture sections, proposed and coordinated purchase of furniture selection 3d modeled project using SketchUp, proposed initial mechanical and electrical layouts, proposed lighting selection and coordinated purchase of lighting selection. Electrical and mechanical engineering by MA Engineering, kitchen design by Mounir Ismail, and initial floor plan layout by others.

before
Previous
Previous

Ferndale Commercial