Detroit Commercial Rehabilitation

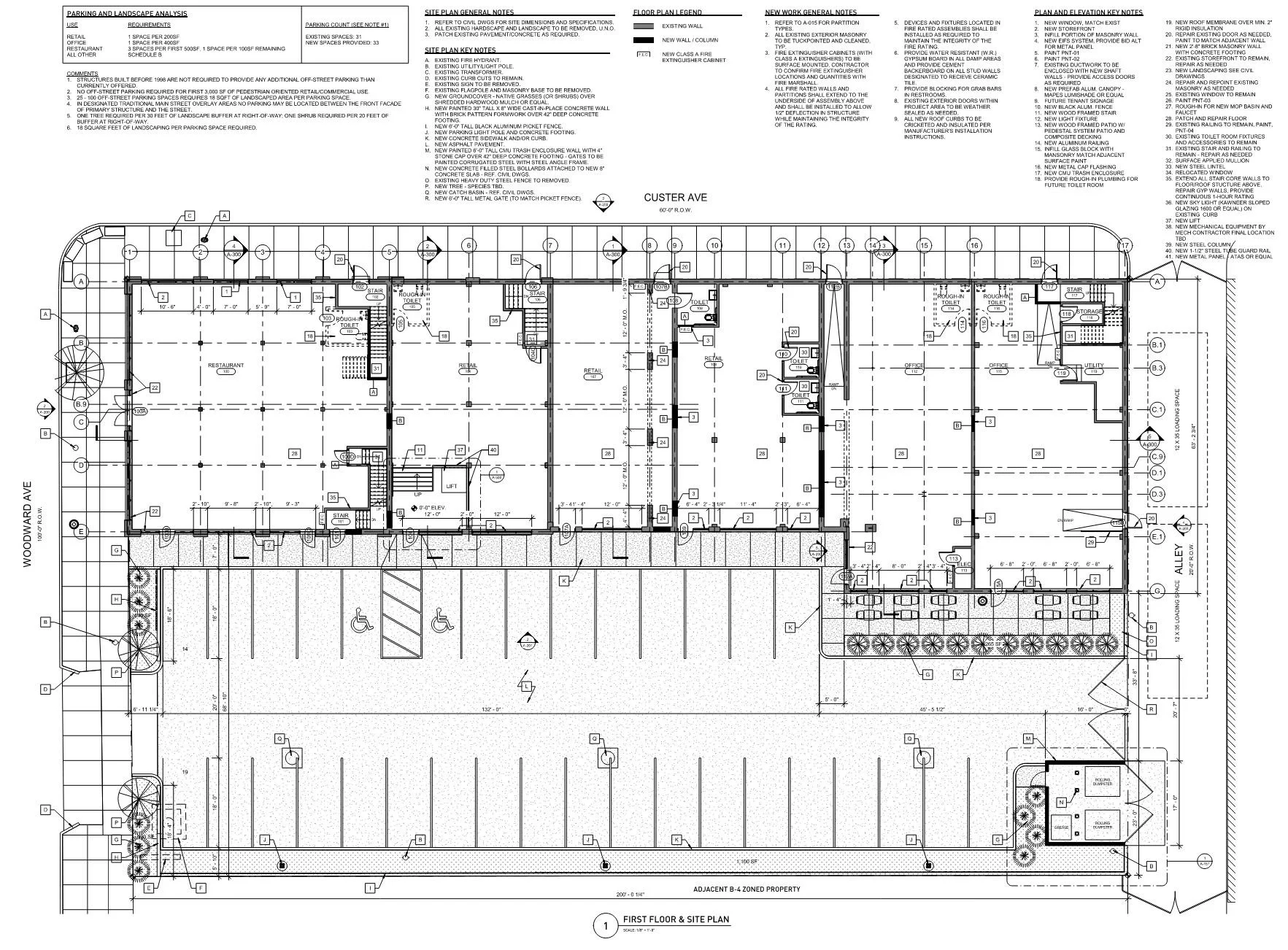
New Center Plaza - 11,000 sf rehabilitation of a mixed use commercial office and retail building in Detroit’s New Center Neighborhood on Woodward Ave. adjacent to the QLine. As Project Manager / Designer for McIntosh Poris I used Revit to create construction documents and maintained a direct line of communication with the client.

before
Previous
Previous

Birmingham Municipal

Next
Next

Birmingham Commercial